您好!欢迎访问广州永泽工程技术有限公司官网!
随着我国节能减排的大力开展,全国各地都在开展排污摸底工作,对于污水的精确计量存在着大量需求,但是在实践中使用的方法应用上还存在一些误区,许多不适合的方法被大量应用于污水计量,结果造成设备闲置,计量不准等后果。本文着重介绍了在地上明渠及地下暗渠中污水计量的几种常用方法,供大家参考
Abstract:With the great execution of the energy saving and emission reduction, the surveywork for knowing the real situation of pollution discharge is executed in every regionof China, and it has a great demand to accurate measurement of the sewage water,nevertheless in the practical work, it has some mistakes to the method application, andmany inappropriate methods are used for measuring the sewage water, resulting inidling of equipment and inaccuracy of measurement. In this article, it mainlyintroduces some usual methods for measuring sewage water of the open ditch andcovered ditch, and this may be referred to by everybody.
关键词:污水 流量 计量 梯形槽 巴歇尔槽 宽顶堰 矩形堰 P-B 槽
Key word: sewage water, discharge, measurement, trapezoid flume, Parshall flume,broad-crested weir, rectangle weir, P-B flume
随着我国节能减排的大力开展,全国各地都在陆续开展排污摸底工作,对于污水的精确计量存在着大量需求,但是在实践中使用的方法应用上还存在一些误区,许多不适合的方法被大量应用于污水计量,结果造成设备闲置,计量不准等后果。
要搞清如何找到适合的方法对污水进行精确计量,首先要明确污水的特性。污水是指受一定污染的来自生活和生产的排出水,在中国污水排放的形式非常严峻,许多高浓度污水没有经过任何处理直接排放到自然环境,排放到市政管网的污水其污染浓度也远远大于发达国家。要想治理污染首先要对于排放总量进行控制,必先做的就是掌握污水的排放总量,再分门别类的进行治理。
目前,在实际应用中,污水的排放仍然沿用粗放式的计量模式,厂矿企业都是以上水作为污水处理费的缴纳依据,许多污水处理厂的进出水计量也处于不受控的状态中,加强污水排放监测,是解决环境问题的一个重要的课题。掌握适用于污水计量的方式方法是解决这一问题的关键所在。
污水根据其特性,应优先选取非接触式明渠流量计配合专门的堰、槽进行流量测量,因为污水的化学物质、生物物质,或者经过污水处理厂处理后夹带的活性污泥等会严重影响类似于电磁流量计等设备的正常运行;污水中还含有大量杂质、漂浮物等,电导率等不易控制,电极端子正常工作时间很短,所有接触式测量方法都会在一定时间内精确度严重漂移,造成计量不准,甚至设备停用;污水的另外一个特性还有其一般为重力流,在这种自由条件下形成的半管流也是许多接触式或管道式流量计力所不能及的。在实践中有很多失败的案例,正是由于没有掌握适合的方法或寻求到适宜的产品。下面就分地上污水和地下污水两方面的常用计量方法做以介绍。
一:地上明渠污水测量1、 无(有)侧收缩的矩形薄壁堰(图 1)加超声波明渠流量计测量精度:1%--4%测量条件:堰上水位 0.03-0.75m 之间;渠宽大于 30cm适用于流量较大、水位较高、渠宽较宽的明渠流量计量不适用于含有大量漂浮物质和易淤积物质的流量测量。但是确实需要的可以通过技术手段隔离漂浮物,时使之能够更为广泛的合理运用。
求取公式:Q=Ce32 (2g)1/2he3/2bb
其中:Q:流量,m3/s
Ce:流量系数
g:重力加速度,m/s2
bb:堰口的有效宽度,m
he:有效水头,m


图 1 矩形薄壁堰示意图
备注:应按照经常性水头高度确定堰板高度,不宜过高或过低。安装应牢固可靠。渠底若有淤积应及时清理。
通惠河双桥污水排口就采用了无收缩的矩形薄壁堰进行排放量的计量通惠河双桥污水排口为矩形暗渠排口,但排口处可按明渠考虑,渠宽较宽为3.5m,通常液位为 15~30cm,根据规范查询和多年经验,采用无收缩的矩形薄壁堰进行测量。该矩形薄壁堰长 3.49m,高 25cm,厚度 12mm,堰上倾角 50o。由于此排污口水流量较大,流速较快,又不能断水施工,给矩形堰的安装造成了极大的困难。设计人员勘察了现场情况后,将整个堰板设计成相等的两段,并为了测量的精确性,将两段堰板接缝处设计成正反两个阶梯型,安装后两处阶梯合为一体,整体性好,又不漏水。施工时,先将水引向渠道一侧,安装第一半堰板;第一半堰板安装好之后,将水引向渠道另一侧,安装另一半堰板。矩形薄壁堰安装好以后,测得 hmax=12cm,在行近渠道上,距堰板 50cm 处上方安装超声波流量计探头(图 2)。


图 2 通惠河双桥污水排口
2、宽顶堰(图 3)加超声波明渠流量计测量精度:3%--5%测量条件:堰上水位大于 0.06m;渠宽大于 30cm适用于流量大的城市生活污水、工业废水和雨水的明渠排水流量测量。
求取公式:Q=(2/3)3/2Cg1/2bh3/2
其中: Q:流量,m3/s
C:流量系数
g:重力加速度,m/s2
b:堰宽,m
h:上游堰顶水头,m

图 3 宽顶堰示意图
备注:因本堰有较为严格的应用条件,需按照规定计算得出是否适用宽顶堰法;本堰分矩形宽顶堰、圆缘宽顶堰,具体适应情况应通过实际情况确定;堰体与渠底安装应牢固可靠;渠底若有淤积应及时清理;本堰体的优势在于可以根据不同的渠道和水流自由设计堰体尺寸。
通惠河会村污水排口就采用了矩形宽顶堰进行排放量的计量(图 4)。
通惠河会村污水排口为矩形暗渠排口,但排口处可按明渠考虑,渠宽为 3m,通常液位为 50~80cm,根据规范查询和多年经验,采用矩形宽顶堰进行测量。该矩形薄壁堰长 2.99m,高 40cm,厚度 40cm。由于此排污口水流量非常大,水深常态为 50cm 以上,又不能断水施工,给宽顶堰的安装造成了巨大的困难。同通惠河双桥排口,将整个宽顶堰堰设计成相等的两段,并为了测量的精确性,将两段堰板接缝处设计成正反两个阶梯型,安装后两处阶梯合为一体,整体性好,又不漏水。施工时,先将水引向渠道一侧,安装第一半堰板;第一半堰板安装好之后,将水引向渠道另一侧,安装另一半堰板。矩形宽顶堰安装好以后,测得hmax=68cm,在行近渠道上,距堰板 240cm 处上方安装超声波流量计探头。


图 4 宽顶堰安装后实景照片
3、巴歇尔水槽(图 5)加超声波明渠流量计测量精度:2%--5%测量条件:喉道在 0.152—2.4m 之间适用于渠道坡降小、水中杂质多、污水流量为 1.5L/S—93m3/S 的明渠流量测量。
求取公式:Q=Chn
其中:Q:流量,m3/s
C:流量系数
h:上游水头,m
n:由喉道宽度决定的指

数图 5 巴歇尔槽示意图
备注:巴歇尔槽的中心线要与渠道的中心线重合,使水流进入巴歇尔槽不出现偏流。其上游应有大于 5 倍渠道宽的平直段,使水流能平稳进入巴歇尔槽。即没有左右偏流,也没有渠道坡降形成的冲力。安装在渠道上要牢固。与渠道侧壁、渠底连结要紧密,不能漏水。需使水流全部流经巴歇尔槽的计量部位。巴歇尔槽的计量部位是槽内喉道段。
北京军区大院的景观水(处理后中水)排口采用了巴歇尔水槽计量从景观河流排入市政管网的水流量。北京军区大院的景观水(处理后中水)排口为矩形明渠,渠道宽 30cm,雨天水位 10cm~20cm,平时稍有溢流。由于要求计量精确,根据现场实际情况,选用喉道为 75mm 的巴歇尔水槽测流。由于涉及军方内部资料,故未取得施工照片。
4、三角堰(图 6)加超声波明渠流量计测量精度:1%--3%测量范围通常在 1.08 立方米/小时~360 立方米/小时;方法适合于渠道宽度不大,水流条件较好,需精确计量的沟渠;本方法不适宜存在大量漂浮物的水面,但可根据实际情况采用一些措施使得其仍然可以在一定的条件下适应。
求取公式:Q=Ce158 tg 2α (2g)1/2he5/2
其中:Q:流量,m3/s
Ce:流量系数
g:重力加速度,m/s2
he:有效水头,m

图 6 三角堰示意图
备注:应按照经常性水头高度确定堰板高度,不宜过高或过低;安装应牢固可靠。渠底若有淤积应及时清理。
二:下水道暗渠流量测量(自由流条件下)
1、矩形非满流暗渠在一定条件下可在暗渠中使用。(参照地上宽顶堰或矩形堰)
2、矩形暗渠坡度法加超声波流量计在水流量特大,无法下水施工,并且对测量精度要求不高的情况下,可以使用坡度法测量流量。
求取公式:Q=AVV=n1 R2/3I1/2
其中:Q:流量,m3/s
A:过水断面面积,m2
V:流速,m/s
R:水力半径,m
I:坡度
n:渠道粗糙系数

图 7 清河污水处理厂入清河时实景照片
清河污水处理厂入清河总排口(图 7)就采用了坡度法测量排入清河的水量。
清河污水处理厂入清河排口为矩形暗渠,渠宽近 7 米,水深近 1m,日流量近 30 万吨,流速极快,在这种情况下,无法下水施工安装堰板等。通过水尺标定零水位,在检查井井壁安装超声波流量计探头,标定零水位后采用坡度法计算出各水位时的水流量,再将得出的液位流量的对应关系输入超声波流量计,流量计准确记录瞬时流量并计算累计流量。
3、圆形暗渠坡度法加超声波明渠流量计这是目前比较常用的测量暗渠大致流量的方法:坡度-过水面积测量法,根据已知管道的坡度、管壁粗糙度等情况下,用非接触式液位计测量出管道中重力流的水位高度,然后利用计算公式算出流量值,但是这种测量方法由于管道坡度、管壁粗糙系数的不确定性,以及管道内杂物淤积堵塞管道等原因,使得采用这种测量法得出的流量值存在较大误差,在实际测量工程上,例如对下水道的污水流量测量产生诸多不便。此方法只能作为非精确污水计量使用。
求取公式:Q=AVV=n1 R2/3I1/2
其中:Q:流量,m3/s
A:过水断面面积,m2
V:流速,m/s
R:水力半径,m
I:坡度
n:渠道粗糙系数
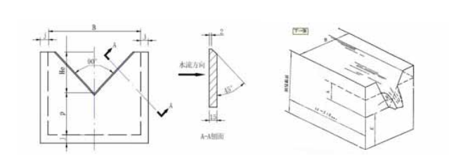
4、下水道圆形暗渠流量槽(梯型槽,见图 8)加超声波明渠流量计
测量精度:1%--3%
测量条件:管径为 250—2200mm 的圆管
国内唯一适用于下水道圆形暗渠的污水流量精确计量槽优点:独特的自清洁设计,获国家专利 ZL 200920108560.3,相比较美国的P-B 槽更适合国内污水管道特性,计算方法更趋合理,权威机构计量标定;玻璃钢槽体抗腐蚀、不变形经久耐用;安装方便快捷,不阻流、不破坏原管道;误差小,系统误差仅为 1%-3%;通过与超声波明渠流量计配套使用,广泛应用于大小市政、工矿企业污水排放计量。求取原理: 圆形断面收缩成倒梯形喉道,喉道部产生射流(平均流速比水面传播的水波速度快的流动),测量上游侧水位 ha,求取流量
Q。求取公式:Q = KhaB
其中:Q:流量,L/s
K:修正系数
ha:水位,cm
B:相关系数
公式说明:
1、上述 K,B 根据不同的管径有相关不同的系数,可通过计算公式手册查询
2、ha 是指通过梯形槽中部测流段的液位高度


图 8 梯形槽剖面图及实物
图片备注:在维持自由水面流的管渠内,管壁粗糙度等条件变化会导致流量值变化,而下水道流量专用槽几乎不受管壁粗糙度等条件变化的影响,测量值的长期变化小;下水道流量专用槽的水头损失在非满管流仪表中属于较小的,喉道部槽顶清洗效果显著,几乎不必担忧固体物的沉淀和堆积;作为渠道不发生射流的条件,下水道流量专用槽上游暗渠坡度必须在 20/1000 以下,然而实际渠道几乎没有会超过该坡度者;渠道下游侧水深必须小于上游侧水深的 85%,不能满足条件,测量精度会下降,有时甚至无法测量。
北京奔驰亦庄工厂的 4 个污水排口采用了下水道专用流量计量槽用来测量流量。北京奔驰亦庄工厂是新建工厂,污水管道的管线为 PE 材质 DN400 直径,管线较新。DN400 的梯形槽和管道匹配度极高,可以直接插入管道 5CM,这时大部分水流已经导流至槽体,所以可直接带水作业,用快干高强水泥封堵槽体中间段的梯形两侧,观察一段时间,待水泥全部凝固,梯形槽施工完毕后,将超声波流量计探头用不锈钢螺栓固定于梯形槽专用探头支架上,设定零水位即可实现瞬时和累计流量的监测。

图 9 梯形槽安装后实景照片
上述几种方法基本了满足地上、地下污水管线、渠道的污水流量监测的需要。以上几项工程实例均根据需要接驳了无线远程监测系统并全部由太阳能供电系统供电,支持4G、5G等无线网络通讯,并应用专为流量监控开发的客户端软件对于流量进行实时监测。
污水精确计量是一个系统工程,在实践中,需根据不同的实际情况酌情选取,除了有经验丰富的专业人员规划设备选型、计量堰槽本身的加工精度外,还要结合超声波明渠流量计的精度进行综合调整,在匹配度良好和有保证的施工质量前提下,测量精度会进一步提高。
广州永泽工程技术有限公司
2026-04-01

2026-01-28


2025-10-30

mcga-uocfm@qq.com
广州市黄埔区丰乐北路1736号大院1号302房自编01